home about_us product job_reference contact_us  
range_of_system range_of_cupboard range_of_service_duct range_of_product layout_plan
  Safety Cabinets Fume Cupboard Balance Table Work Top Laboratory Stools Fitting Accessories Electrical  
icon PRODUCT :: Fume Cupboard  
 
  fume_cupboard  
 
Specifications
Body
Double wall construction
Front Fascia Aerodynamically shaped
Exterior Baked epoxy powder coated electrogalvanised steel structure
Inner Chamber One-piece moulded GRP (chemical resistant grade) with service access panels and radial used corners
Baffle Same as inner chamber, removable for easy cleaning
Sash Tempered safety glass as standard, 6mm thick
Work Top Epoxy resin (imported) as standard, high heat and chemical resistance, marine edge to prevent spills
Drip Cup Polypropylene (PP) oval cup sink (6” diameter) as standard with PP waste and anti-siphon bottle trap
Remote Start/Stop switch for exhaust fan
Light switch for light fittings
Support base unit (Option 1) – free standing epoxy powder coated steel base cabinet with internal shelving lined with PVC sheet and vent ports
Support base unit (Option 2) – epoxy powder coated metal frame support structure with snap-on wooden/steel
(epoxy coated) cabinet, with internal shelving lined and vent ports
 
 
  Standard Service Fittings  
  Light fittings “Daylight” fluorescent type fixtures; 1 x 20 W (4 ft models),
2 x 20W (5 ft models) and 2 x 40W (6 ft and 8 ft models)
 
  Switch socket outlets 2 nos. 13 Amp, 3 pin type (International ones available)  
  Remote Services 1 cold water and 1 gas as standard, European manufactured, colour coding as per DIN 12920, 1995. (Please advise if you require more remote services)  
 
  Options (to be specified at time of order)  
  • Additional remote services  
  • Audio/visual air-flow alarm, MODULAP Air Control (MAC)  
  • Other work tops: Stainless steel (304 & 316), ceramic, PP/PVC, compact laminate  
  • Additional / larger sinks  
  • VAV or VSD systems  
  • Polycarbonate sash  
  • Acid base cabinet with venting  
  • Explosion proof lighting and fixtures  
  • Fire extinguishers: dry chemical powder and CO2 types  
 
      Fume Hood Technical Planning  
  technical_plan technical_plan  
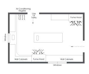
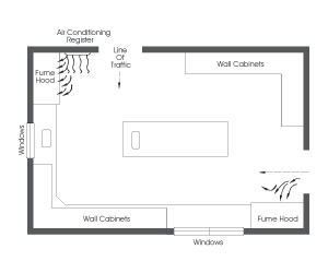
  LOW EFFICIENCY LOCATION PREFERRED LOCATION  
 
 

After proper usage, lining, counter top, and service fitting selections are made, fume hood location in the laboratory is decided. The decision should be based on easy access to pipe and duct service connections, and the work environment including traffic flow, interruptions, and whether the air conditioning is designed into the building system air handling capability. Another consideration is the possibility of adding another fume hood unit at a later date.

Draft patterns included into the laboratory by door and window openings or air conditioning registers sometimes have serious effects on laboratory fume hood performance. Laboratory fume hood exhaust is often used as part of a properly functioning air handling system for the building as a constant exhaust. In this type of application, the fume hood exhaust blowers should be in continual operation.

It is recommended that each fume hood have its own individual exhaust duct system and fume hood blower. The preferred blower location is the exterior of the building at the discharge end of the duct system. Independent research, unless closely monitored, utilizing a common duct system for a number of fume hoods often has serious consequences.

The proper design of the duct system in terms of size, length, velocities and types of materials employed should be evaluated by you and your engineer during the planning stages. Duct life, type of exhaust contaminates to be handles, ease of fabrication, cost and longevity are also areas of importance.

Hood safety procedure operations are points of consideration. Proper maintenance of sash assemblies, baffle hardware, and service fixtures including their ease in maintenance and replacement are points to consider in the location of fume hoods within the laboratory.

There are no mysteries in proper and safe fume hood installations. Only by consideration of all factors involved and efficient planning for the future can the inherent qualities if the fume hood be utilized to their fullest potential.

 
         
      Back to top  
         
 
© 2010 Steelab (M) Sdn Bhd All Rights Reserved